Price
£97000
Availability
For Sale
property type
End of Terrace House
Bedrooms
2
Bathrooms
1
reception rooms
2
Tenure
Freehold
Property Features
- 2 Bedrooms
- Terraced Cottage
- Countryside Views
- On Street Parking
Property Summary
A SPACIOUS TWO BEDROOM END OF TERRACED in Abertilley, ideal for an array of buyers. Call to enquire!
Bettermove are proud to present this 2 bedroom terraced cottage in Abertilley.
The property benefits from double glazing, and gas central heating throughout, with on street parking available.
The council tax band is A.
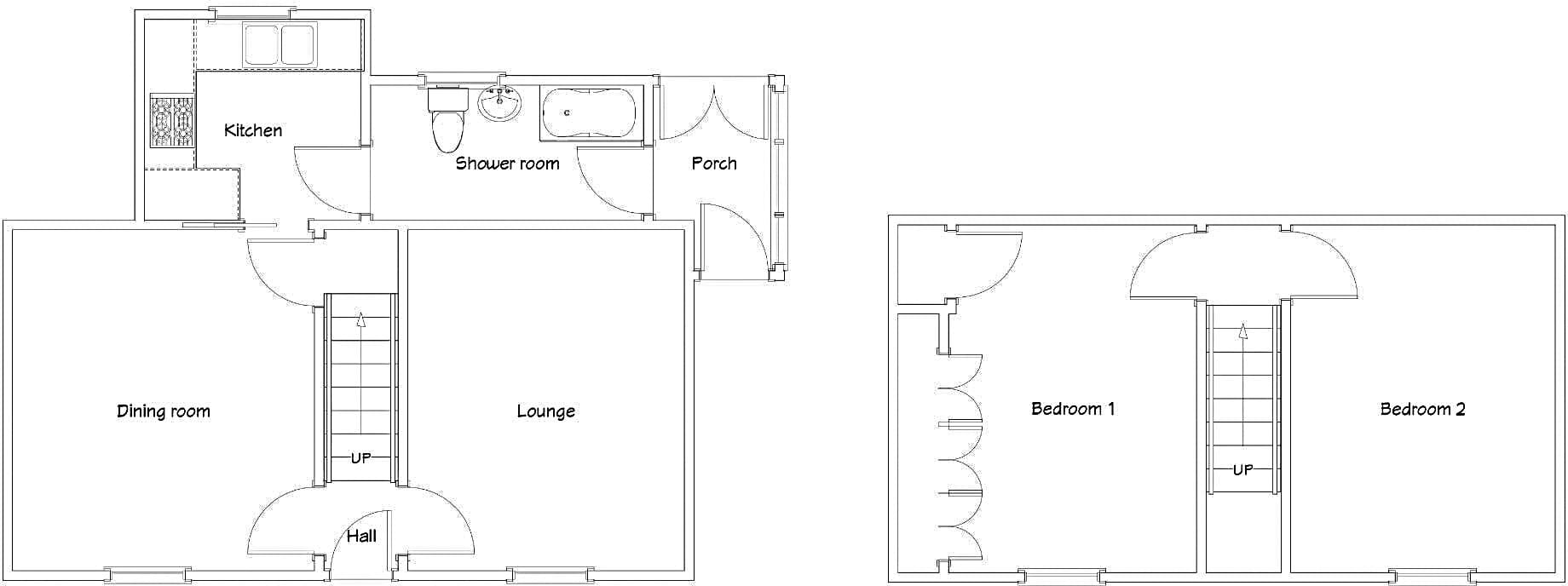
The interior of this beautifully presented property comprises a spacious living room, dining room, fitted kitchen, and shower room on the ground floor. The first floor consists of two double bedrooms. The property also benefits from stunning views of the surrounding countryside, perfect for enjoying the summer months.
Located in the popular town of Abertillery, the property is close to a range of amenities, including shops, supermarkets, restaurants and pubs. Excellent transport connections can be found from Llanhilleth Train Station, a variety of local bus routes, and quick access to the M4.
This exciting opportunity should not be missed. All enquiries can be made through Bettermove.
-----------------------------------------------------------------------------------
Reserve It Now
Secure your property with a £1,000 exclusivity deposit.
It’s taken off the market, locked in for you, and returned to you on completion.
No risk of being gazumped. No wasted costs.
Talk to our team today about Exclusivity Deposits
------------------------------------------------------------------------------------
Part Exchange Available
We can take your property in as part exchange, giving you a guaranteed buyer and a quicker, chain-free move.
Ask our team today about how our Part Exchange option can help you move with confidence.
Part Exchange subject to terms, valuation, and eligibility.
Please Note: These particulars, whilst believed to be accurate are set out as a general outline only for guidance and do not constitute any part of an offer or contract. Intending purchasers should not rely on them as statements of representations of fact, but must satisfy themselves by inspection or otherwise as to their accuracy. No person in this firm’s employment has the authority to make or give any representation or warranty in respect of the property.
Enquire about this property
"*" indicates required fields























