Price
£235000
Availability
For Sale
property type
Terraced House
Bedrooms
2
Bathrooms
1
reception rooms
2
Tenure
Freehold
Property Features
- 3 Bedrooms
- Terraced Cottage
- Mezzanine
- New Windows and Doors Throughout
Property Summary
A SPACIOUS TWO BEDROOM TERRACED HOUSE in Sandhutton, perfect for families. Call to enquire!
Bettermove are proud to present this 3 bedroom terraced cottage in Sandhutton.
This property benefits from double glazing, LPG heating, and new windows and doors throughout (fitted in 2023), with on street parking available.
The council tax band is B.
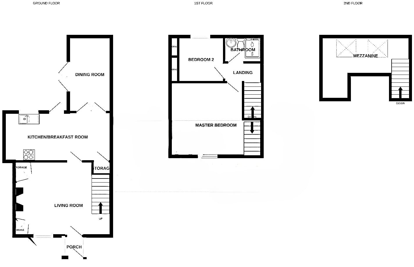
The interior of this beautifully presented property combines modern living with characterful period features. The ground floor consists of a spacious living room, dining room, and fitted kitchen/breakfast room on the ground floor. The first floor consists of two bedrooms, alongside the family bathroom, a second set of stairs leads to the mezzanine area. Outside, the property boasts a private, rear courtyard, laid with paving, perfect for enjoying the summer months.
Located in the sought after village of Sandhutton, Thirsk, the property is close to a range of amenities, including shops, supermarkets, restaurants, pubs, and schools. Excellent transport links can be found from Thirsk Train Station, a variety of local bus routes, and quick access to the A1(M).
This exciting opportunity should not be missed! All enquiries can eb made through Bettermove.
-----------------------------------------------------------------------------------
Reserve It Now
Secure your property with a £1,000 exclusivity deposit.
It’s taken off the market, locked in for you, and returned to you on completion.
No risk of being gazumped. No wasted costs.
Talk to our team today about Exclusivity Deposits
------------------------------------------------------------------------------------
Part Exchange Available
We can take your property in as part exchange, giving you a guaranteed buyer and a quicker, chain-free move.
Ask our team today about how our Part Exchange option can help you move with confidence.
Part Exchange subject to terms, valuation, and eligibility.
Please Note: These particulars, whilst believed to be accurate are set out as a general outline only for guidance and do not constitute any part of an offer or contract. Intending purchasers should not rely on them as statements of representations of fact, but must satisfy themselves by inspection or otherwise as to their accuracy. No person in this firm’s employment has the authority to make or give any representation or warranty in respect of the property.
Enquire about this property
"*" indicates required fields

































