Price
£257000
Availability
For Sale
property type
Commercial
Bedrooms
2
Bathrooms
4
reception rooms
2
Tenure
Freehold
Property Features
- 2 Bedroom Accommodation
- Ready to Go Restaurant
- No Forward Chain
- Investment Opportunity
Property Summary
A MIX-USE property with a TWO BED APARTMENT and READY-TO-GO RESTAURANT, available CHAIN FREE. Call to enquire!
Bettermove are proud to present this Mix-use property including a 2 bedroom Residential Accommodation and 'Ready to Go' restaurant, available with no forward chain.
The property benefits from double glazing and electric heating throughout, with on street parking available outside the commercial unit.
The council tax band is B.
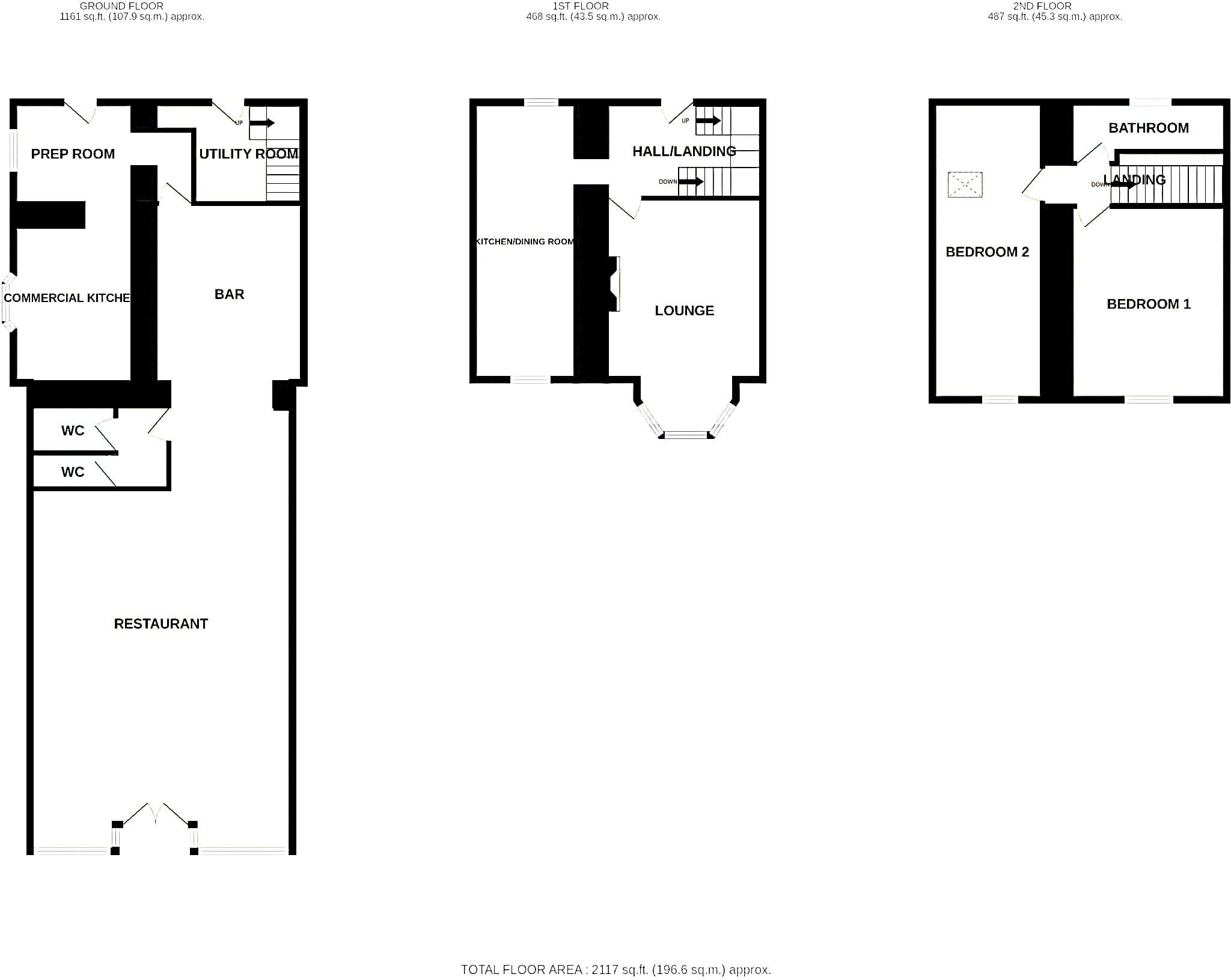
This property is made up of a three-storey residential accommodation, comprising a spacious living room, fitted kitchen/dining room, two good sized bedrooms and a family bathroom.
The restaurant Village Bistro is a fully equipped restaurant, with a commercial kitchen, prep room, bar area, utility room, two WCs, and the restaurant area, with potential for 50 covers.
Externally, there are two stone outhouses for extra storage and a rear garden, perfect for enjoying the summer months.
Located in the popular coastal town of Penmaenmawr, the property is close to a range of amenities, including shops, supermarkets, restaurants, pubs, schools, and a short distance to the seafront. Excellent transport links can be found from Penmaenmawr Railway Station, a variety of local bus routes, and quick access to the A55.
This exciting investment opportunity should not be missed! All enquiries can be made through Bettermove.
-------------------------------------------------------------------------------------
Reserve It Now
Secure your property with a £1,000 exclusivity deposit.
It’s taken off the market, locked in for you, and returned to you on completion.
No risk of being gazumped. No wasted costs.
Talk to our team today about Exclusivity Deposits
-------------------------------------------------------------------------------------
Part Exchange Available
We can take your property in as part exchange, giving you a guaranteed buyer and a quicker, chain-free move.
Ask our team today about how our Part Exchange option can help you move with confidence.
Part Exchange subject to terms, valuation, and eligibility.
Please Note: These particulars, whilst believed to be accurate are set out as a general outline only for guidance and do not constitute any part of an offer or contract. Intending purchasers should not rely on them as statements of representations of fact, but must satisfy themselves by inspection or otherwise as to their accuracy. No person in this firm’s employment has the authority to make or give any representation or warranty in respect of the property.
Enquire about this property
"*" indicates required fields







































