Price
£190000
Availability
Sold STC
property type
Bedrooms
2
Bathrooms
1
reception rooms
1
Tenure
Freehold
Property Features
- Mixed Use Property
- Two Bedroom Flat on Remaining Floors
- Requires Modernisation Throughout
- Excellent Development Opportunity
- No Forward Chain
Property Summary
A MIXED USE PROPERTY in Helston, available CHAIN FREE. Call to enquire!
Bettermove are proud to present this Mixed Use property in Helston, including a commercial unit, and a 2 bedroom flat, available with no forward chain.
The council tax band of the flat is A.
The commercial unit has an EPC rating of C.
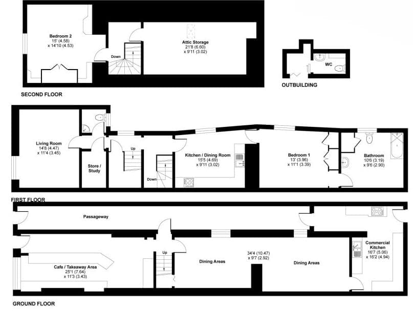
The interior of this property, which may require modernisation throughout, comprises a commercial unit on the ground floor, and a 2 bedroom flat on the remaining floors.
The commercial unit, currently trading as a café, consists of the café area, two further rooms, used as dining rooms, and a commercial kitchen.
The residential area of the building comprises a spacious living room, fitted kitchen/diner, WC, one double bedrooms, and a family bathroom on the first floor, with the second bedroom located on the second floor, alongside useful attic storage space. Externally, the property boasts an outside WC, and a private rear garden, perfect for enjoying the summer months.
Located in the popular town of Helston, the property is close to a range of amenities, including shops, supermarkets, restaurants and pubs. Excellent transport connections can be found from a variety of local bus routes, and quick access to the A394.
This exciting opportunity should not be missed. All enquiries can be made through Bettermove.
-----------------------------------------------------------------------------------
Reserve It Now
Secure your property with a £1,000 exclusivity deposit.
It’s taken off the market, locked in for you, and returned to you on completion.
No risk of being gazumped. No wasted costs.
Talk to our team today about Exclusivity Deposits
------------------------------------------------------------------------------------
Part Exchange Available
We can take your property in as part exchange, giving you a guaranteed buyer and a quicker, chain-free move.
Ask our team today about how our Part Exchange option can help you move with confidence.
Part Exchange subject to terms, valuation, and eligibility.
Please Note: These particulars, whilst believed to be accurate are set out as a general outline only for guidance and do not constitute any part of an offer or contract. Intending purchasers should not rely on them as statements of representations of fact, but must satisfy themselves by inspection or otherwise as to their accuracy. No person in this firm’s employment has the authority to make or give any representation or warranty in respect of the property.
Enquire about this property
"*" indicates required fields























