Price
£328000
Availability
Sold STC
property type
Semi-Detached House
Bedrooms
3
Bathrooms
1
reception rooms
2
Tenure
Freehold
Property Features
- Characterful Victorian Semi-Detached
- 3 Bedrooms
- No Forward Chain
- Solar Panels Owned Outright
Property Summary
A SPACIOUS THREE BEDROOM VICTORIAN SEMI-DETACHED in Sudbury, available CHAIN FREE. Call to enquire!
Bettermove are proud to present this 3 bedroom semi-detached Victorian house in Sudbury, available with no forward chain.
This property benefits from double glazing, gas central heating throughout, and solar panels, with on street parking available.
The council tax band is D.
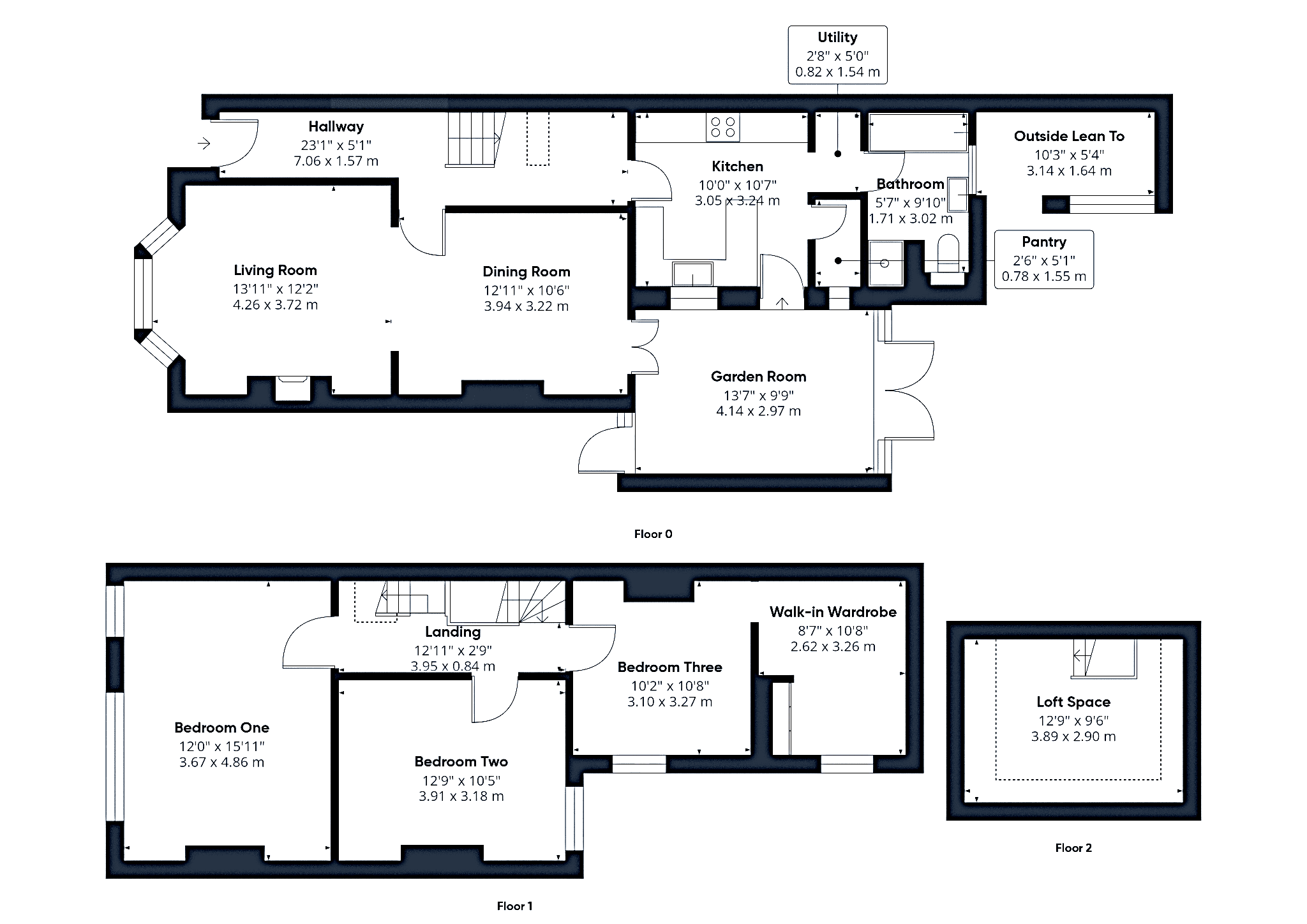
This charming and characterful property offers a spacious and well-appointed interior. The ground floor features a generous living room, dining room, fitted kitchen with an adjoining pantry and utility room, family bathroom, and a bright garden room ideal for relaxing or entertaining. Upstairs, the first floor comprises three generously proportioned bedrooms, with bedroom three benefitting from a walk-in wardrobe, providing excellent storage space. The loft room is currently used as an office. Externally, the property includes a useful tool shed and a lean-to attached to the main building, offering additional storage options. The private rear garden is perfect for enjoying the warmer months.
Located in the popular town of Sudbury, the property is close to a range of amenities, including shops, supermarkets, restaurants, pubs, and schools. Excellent transport links can be found from Sudbury Train Station (0.8 mile), a variety of local bus routes, and quick access to the A131.
This exciting opportunity should not be missed! All enquiries can be made through Bettermove.
-------------------------------------------------------------------------------------
Reserve It Now
Secure your property with a £1,000 exclusivity deposit.
It’s taken off the market, locked in for you, and returned to you on completion.
No risk of being gazumped. No wasted costs.
Talk to our team today about Exclusivity Deposits
-------------------------------------------------------------------------------------
Part Exchange Available
We can take your property in as part exchange, giving you a guaranteed buyer and a quicker, chain-free move.
Ask our team today about how our Part Exchange option can help you move with confidence.
Part Exchange subject to terms, valuation, and eligibility.
Please Note: These particulars, whilst believed to be accurate are set out as a general outline only for guidance and do not constitute any part of an offer or contract. Intending purchasers should not rely on them as statements of representations of fact, but must satisfy themselves by inspection or otherwise as to their accuracy. No person in this firm’s employment has the authority to make or give any representation or warranty in respect of the property.
Enquire about this property
"*" indicates required fields











