Price
£265000
Availability
For Sale
property type
Detached House
Bedrooms
4
Bathrooms
2
reception rooms
1
Tenure
Freehold
Property Features
- Perfect Family Home
- 5 Bedrooms
- Detached House
- Off Road Parking & Garage
- Family Bathroom, En-suite and Downstairs WC
Property Summary
A SPACIOUS FOUR BEDROOM DETACHED HOUSE in Knottingley, perfect for families. Call to enquire!
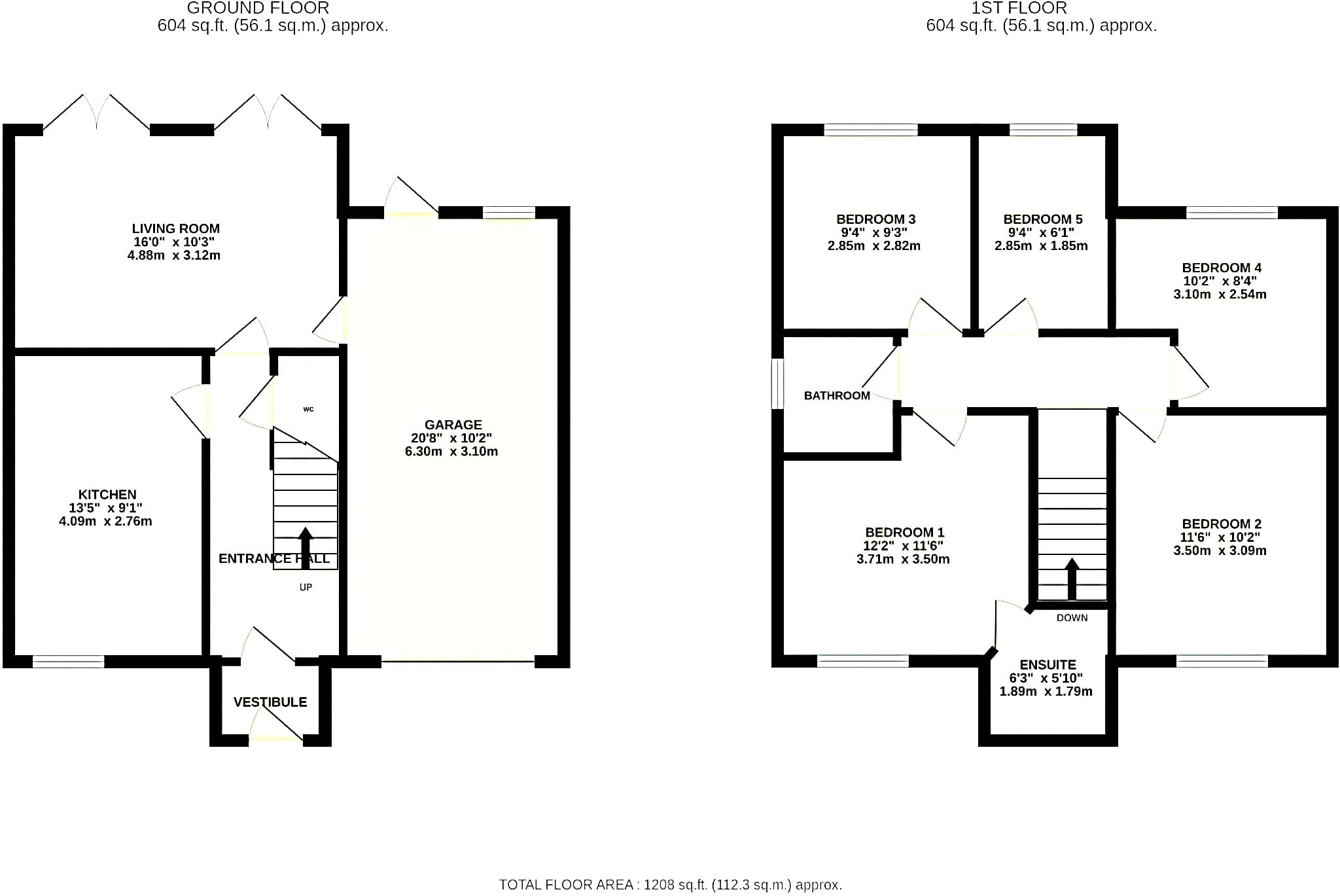
Bettermove are proud to present this 5 bedroom detached house in Knottingley.
This property benefits from high performance glazing and gas central heating throughout, with off road parking for multiple cars to the front of the property, as well as an integral garage.
The council tax band is D.
This property has a service charge of £120.00 per annum.
The interior of this beautifully presented property comprises a modern kitchen/diner, a spacious lounge, with French door leading to the garden, as well as access to the garage, and a WC. The first floor comprises five good sized bedrooms, with one en-suite and the family bathroom. The exterior boasts a large, private rear garden, with both lawn and patio areas, perfect for enjoying the summer months.
Located in the popular town of Knottingley, the property is close to a range of amenities, including shops, supermarkets, restaurants and pubs. Excellent transport links can be found from Knottingley Railway Station, a variety of local bus routes, and quick access to the M62 and A1(M).
This exciting opportunity should not be missed! All enquiries can be made through Bettermove on 0330 004 0050.
-------------------------------------------------------------------------------------
Reserve It Now
Secure your property with a £1,000 exclusivity deposit.
It’s taken off the market, locked in for you, and returned to you on completion.
No risk of being gazumped. No wasted costs.
Talk to our team today about Exclusivity Deposits
-------------------------------------------------------------------------------------
Part Exchange Available
We can take your property in as part exchange, giving you a guaranteed buyer and a quicker, chain-free move.
Ask our team today about how our Part Exchange option can help you move with confidence.
Part Exchange subject to terms, valuation, and eligibility.
Please Note: These particulars, whilst believed to be accurate are set out as a general outline only for guidance and do not constitute any part of an offer or contract. Intending purchasers should not rely on them as statements of representations of fact, but must satisfy themselves by inspection or otherwise as to their accuracy. No person in this firm’s employment has the authority to make or give any representation or warranty in respect of the property.
Enquire about this property
"*" indicates required fields



































