For Sale
Price

£720000

Availability

For Sale

property type

Detached House

Bedrooms

4

Bathrooms

1

reception rooms

1

Tenure

Freehold

  • Make Enquiry
  • Floorplan
  • Floorplan
  • Floorplan
  • Floorplan
  • Floorplan
  • View Brochure
  • View EPC

Property Features

  • Two Properties Within Grounds
  • 3 Bedroom Detached & 1 Bedroom Bungalow
  • 1.4 Acres
  • Extensive Gardens

Property Summary

A SPACIOUS THREE BEDROOM DETACHED HOUSE AND 1 BEDROOM DETACHED BUNGALOW in Meltham, available CHAIN FREE. Call to enquire!


Bettermove are proud to present this 3 bedroom detached house and 1 bedroom bungalow in Meltham, available with no forward chain.


This property benefits from electric heating, and mostly double glazing throughout, with ample off road parking available.


The council tax band is B.


The property is made up of a three bedroom detached house, and a 1 bedroom bungalow, both combining original charm with modern living, including exposed beams, feature panelling, and log burning stoves.


The main house comprises a spacious living room, fitted kitchen, utility room, snug, sun lounge, and family bathroom on the ground floor. The first floor consists of three good sized bedrooms, and a fourth smaller bedroom, with additional storage. 


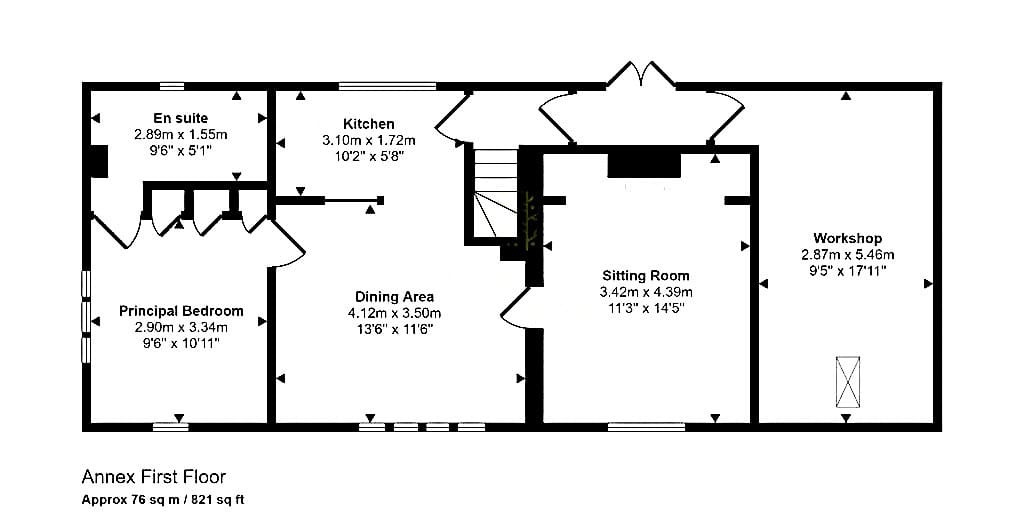
The bungalow boasts a spacious living room, dining room, fitted kitchen, double bedroom, and en-suite on the first floor, with an additional workshop. The second floor houses a mezzanine and large storage room, while the ground floor consists of an undercroft garage, utility room and WC.


Situated on 1.4 acres of land, the exterior boasts extensive gardens and woodland, with the main house benefitting from a generous patio area to the front, and tiered gardens leading to the surrounding grounds.


Located in the sought-after village of Meltham, the property is close to a range of amenities, including shops, supermarkets, restaurants, pubs, and schools. Excellent transport links can be found from Slaithwaite Train Station (3.6 miles), a variety of local bus routes, and close access to the A62.


This exciting opportunity should not be missed! All enquiries can be made through Bettermove.


-----------------------------------------------------------------------------------


Reserve It Now


Secure your property with a £1,000 exclusivity deposit.


It’s taken off the market, locked in for you, and returned to you on completion.


No risk of being gazumped. No wasted costs.


Talk to our team today about Exclusivity Deposits


------------------------------------------------------------------------------------


Part Exchange Available


We can take your property in as part exchange, giving you a guaranteed buyer and a quicker, chain-free move.


Ask our team today about how our Part Exchange option can help you move with confidence.


Part Exchange subject to terms, valuation, and eligibility.

< Back to all properties

Please Note: These particulars, whilst believed to be accurate are set out as a general outline only for guidance and do not constitute any part of an offer or contract. Intending purchasers should not rely on them as statements of representations of fact, but must satisfy themselves by inspection or otherwise as to their accuracy. No person in this firm’s employment has the authority to make or give any representation or warranty in respect of the property.

Enquire about this property

0330 0040050

"*" indicates required fields

This field is for validation purposes and should be left unchanged.
This field is hidden when viewing the form
This field is hidden when viewing the form