Price
£100000
Availability
For Sale
property type
Apartment
Bedrooms
2
Bathrooms
2
reception rooms
1
Tenure
Leasehold
Property Features
- No Forward Chain
- Vacant for Immediate Possession
- 2 Bedrooms
- Third Floor Flat
- Leasehold
- Allocated Parking
Property Summary
A SPACIOUS TWO BEDROOMS FLAT in Auckley, available TENANTED for IMMEDIATE investment. Call to enquire!
Bettermove are proud to present this 2 bedroom flat in Auckley, available with no forward chain.
The property is currently tenanted and it will be sold with tenants in situ for immediate investment. Rental yields can be obtained through Bettermove.
The property benefits from double glazing, underfloor, and gas central heating throughout, with secure, allocated parking available.
The council tax band is B.
This is a leasehold property with 108 years remaining on the lease; the ground rent is £450.00 per annum, and the service charge is £2,000.00 per annum.
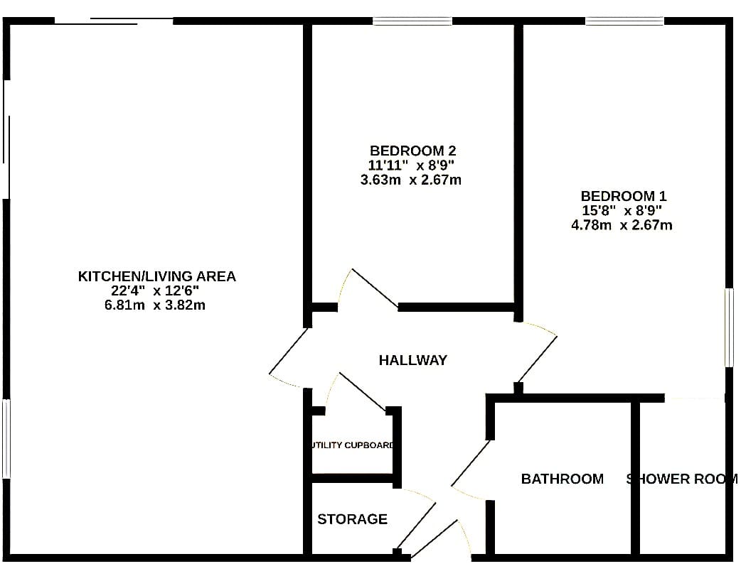
The interior of this beautifully presented, third floor property has been fully redecorated throughout, and comprises a spacious, open-plan living/kitchen area, two double bedrooms, with one en-suite, alongside the family bathroom. The property further benefits from two Juliette balconies, perfect for enjoying the summer months.
Located in the sought after village of Auckley, Doncaster, the property is close to a range of amenities, including shops, supermarkets, restaurants and pubs. Excellent transport connections can be found from Doncaster Train Station, a variety of local bus routes, and quick access M18, and A1(M).
This exciting opportunity should not be missed. All enquiries can be made through Bettermove.
-----------------------------------------------------------------------------------
Reserve It Now
Secure your property with a £1,000 exclusivity deposit.
It’s taken off the market, locked in for you, and returned to you on completion.
No risk of being gazumped. No wasted costs.
Talk to our team today about Exclusivity Deposits
------------------------------------------------------------------------------------
Part Exchange Available
We can take your property in as part exchange, giving you a guaranteed buyer and a quicker, chain-free move.
Ask our team today about how our Part Exchange option can help you move with confidence.
Part Exchange subject to terms, valuation, and eligibility.
Please Note: These particulars, whilst believed to be accurate are set out as a general outline only for guidance and do not constitute any part of an offer or contract. Intending purchasers should not rely on them as statements of representations of fact, but must satisfy themselves by inspection or otherwise as to their accuracy. No person in this firm’s employment has the authority to make or give any representation or warranty in respect of the property.
Enquire about this property
"*" indicates required fields





















