Price
£180000
Availability
For Sale
property type
Terraced House
Bedrooms
2
Bathrooms
1
reception rooms
1
Tenure
Freehold
Property Features
- No Forward Chain
- 2 Bedrooms
- Terraced House
- Summer House With Electrics Connected
Property Summary
A SPACIOUS TWO BEDROOM TERRACED HOUSE in Desborough, available CHAIN FREE. Call to enquire!
Bettermove are proud to present this 2 bedroom terraced house in Desborough, available with no forward chain.
The property benefits from double glazing, and gas central heating throughout, with off street parking available via the driveway.
The council tax band is A.
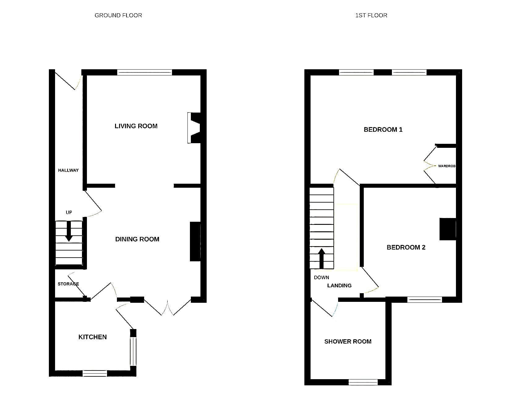
The interior of this beautifully presented property comprises a spacious open-plan living/dining area and fitted kitchen on the ground floor, with French doors opening directly onto the rear garden. The first floor consists of two generously sized bedrooms and a modern shower room. The exterior boasts a beautifully landscaped, low-maintenance rear garden, perfect for enjoying the summer months, with a summer house with its own power supply provides versatile additional space, ideal for use as a home office, hobby room or outdoor retreat.
Located in the popular town of Desborough, Kettering, the property is close to a range of amenities, including shops, supermarkets, restaurants and pubs. Excellent transport connections can be found from Market Harborough (5.6 miles), a variety of local bus routes, and quick access A6, and A14.
This exciting opportunity should not be missed. All enquiries can be made through Bettermove.
-----------------------------------------------------------------------------------
Reserve It Now
Secure your property with a £1,000 exclusivity deposit.
It’s taken off the market, locked in for you, and returned to you on completion.
No risk of being gazumped. No wasted costs.
Talk to our team today about Exclusivity Deposits
------------------------------------------------------------------------------------
Part Exchange Available
We can take your property in as part exchange, giving you a guaranteed buyer and a quicker, chain-free move.
Ask our team today about how our Part Exchange option can help you move with confidence.
Part Exchange subject to terms, valuation, and eligibility.
Please Note: These particulars, whilst believed to be accurate are set out as a general outline only for guidance and do not constitute any part of an offer or contract. Intending purchasers should not rely on them as statements of representations of fact, but must satisfy themselves by inspection or otherwise as to their accuracy. No person in this firm’s employment has the authority to make or give any representation or warranty in respect of the property.
Enquire about this property
"*" indicates required fields





















































