Price
£159000
Availability
Sold STC
property type
Terraced House
Bedrooms
3
Bathrooms
1
reception rooms
1
Tenure
Freehold
Property Features
- No Forward Chain
- Tenanted for Immediate Investment
- 3 Bedrooms
- Terraced House
Property Summary
A SPACIOUS THREE BEDROOM TERRACED HOUSE in Gloucester, available TENANTED for IMMEDIATE investment and CHAIN FREE. Call to enquire!
Bettermove are proud to present this 3 bedroom terraced house in Gloucester, available with no forward chain.
This is currently a tenanted property and will be sold with tenants in situ for immediate investment. Rental yields can be obtained through Bettermove.
This property benefits from gas central heating, and has on street parking available.
The council tax band is A.
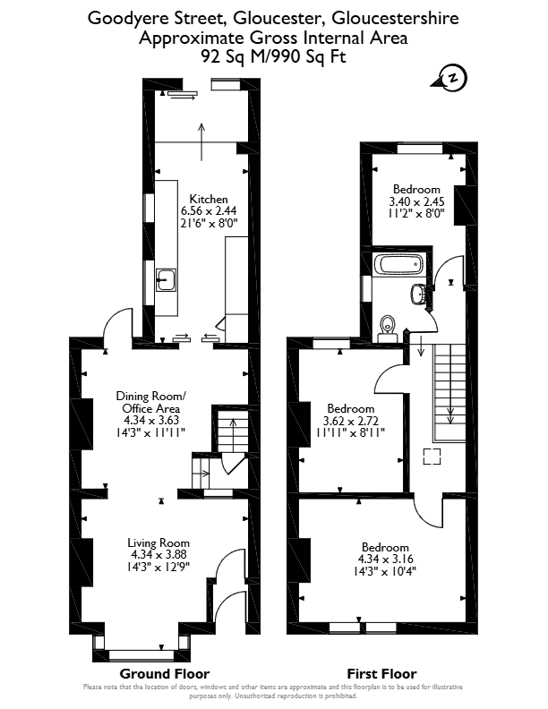
The interior of this property comprises a spacious living room, dining room, and fitted kitchen on the ground floor. Upstairs, you'll find three bedrooms, including two doubles, and the family bathroom. The exterior boasts a private rear garden, perfect for enjoying the summer months.
Located in the city of Gloucester, the property is close to a range of amenities, including shops, supermarkets, restaurants, pubs, and schools. Excellent transport links can be found from Gloucester Train Station (0.4 mile), a variety of local bus routes, and quick access to the A38, and A40.
This exciting investment opportunity should not be missed! All enquiries can be made through Bettermove.
-----------------------------------------------------------------------------------
Reserve It Now
Secure your property with a £1,000 exclusivity deposit.
It’s taken off the market, locked in for you, and returned to you on completion.
No risk of being gazumped. No wasted costs.
Talk to our team today about Exclusivity Deposits
------------------------------------------------------------------------------------
Part Exchange Available
We can take your property in as part exchange, giving you a guaranteed buyer and a quicker, chain-free move.
Ask our team today about how our Part Exchange option can help you move with confidence.
Part Exchange subject to terms, valuation, and eligibility.
Please Note: These particulars, whilst believed to be accurate are set out as a general outline only for guidance and do not constitute any part of an offer or contract. Intending purchasers should not rely on them as statements of representations of fact, but must satisfy themselves by inspection or otherwise as to their accuracy. No person in this firm’s employment has the authority to make or give any representation or warranty in respect of the property.
Enquire about this property
"*" indicates required fields















































