Price
£145000
Availability
For Sale
property type
Flat
Bedrooms
1
Bathrooms
1
reception rooms
1
Tenure
Leasehold
Property Features
- No Forward Chain
- Tenanted for Immediate Investment
- 1 Bedroom
- Ground Floor Flat
- Private Terrace
- Allocated Underground Parking
- Leasehold
Property Summary
A SPACIOUS ONE BEDROOM FLAT in Birmingham, available TENANTED for IMMEDIATE investment and CHAIN FREE. Call to enquire!
Bettermove are proud to present this 1 bedroom flat in Birmingham, available with no forward chain.
This is currently a tenanted property and will be sold with tenants in situ for immediate investment. Rental yields can be obtained through Bettermove.
This property benefits double glazing, and electric heating throughout, with an allocated parking space, available in an underground car park.
The council tax band is F.
This is a leasehold property with 124 years remaining on the lease; the ground rent is £150.00 per annum, and the service charge is £4,000.00 per annum.
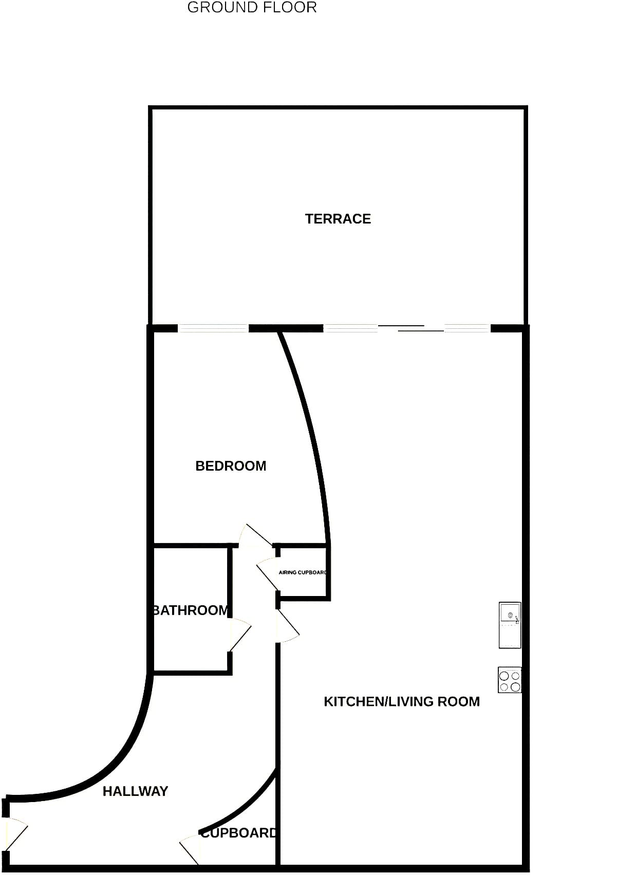
The interior of this beautifully presented, ground floor property comprises a large, open plan living/kitchen area, one double bedroom, and a family bathroom, with ample storage and exposed steelwork throughout. The property also had the added benefit of a large, private terrace, perfect for enjoying the summer months.
Located in the popular city of Birmingham, the property is close to a range of amenities, including shops, supermarkets, restaurants, and pubs. Excellent transport links can be found from Birmingham New Street Station, a variety of local bus and metro links, and quick access to the A38 (M), M6, and M5.
This exciting opportunity should not be missed! All enquiries can be made through Bettermove.
-----------------------------------------------------------------------------------
Reserve It Now
Secure your property with a £1,000 exclusivity deposit.
It’s taken off the market, locked in for you, and returned to you on completion.
No risk of being gazumped. No wasted costs.
Talk to our team today about Exclusivity Deposits
------------------------------------------------------------------------------------
Part Exchange Available
We can take your property in as part exchange, giving you a guaranteed buyer and a quicker, chain-free move.
Ask our team today about how our Part Exchange option can help you move with confidence.
Part Exchange subject to terms, valuation, and eligibility.
Please Note: These particulars, whilst believed to be accurate are set out as a general outline only for guidance and do not constitute any part of an offer or contract. Intending purchasers should not rely on them as statements of representations of fact, but must satisfy themselves by inspection or otherwise as to their accuracy. No person in this firm’s employment has the authority to make or give any representation or warranty in respect of the property.
Enquire about this property
"*" indicates required fields



















