Price
£234000
Availability
For Sale
property type
House
Bedrooms
2
Bathrooms
2
reception rooms
1
Tenure
Leasehold
Property Features
- Retirement Flat
- 2 Bedrooms
- Leasehold
- Cash Buyers Only
Property Summary
A SPACIOUS TWO BEDROOM RETIREMENT FLAT in Dibden Purlieu, welcoming CASH BUYERS and OVER 60s ONLY. Call to enquire!
Bettermove are proud to present this 2 bedroom retirement property in Dibden Purlieu, welcoming cash buyers and over 60's only.
This property benefits from double glazing and electric heating throughout, with permit parking available for approximately £250.00 per annum.
The council tax band is B.
This is a leasehold property with 990 years remaining on the lease; the ground rent is £495.00 per annum, and the service charge is £4,768.92 per annum.
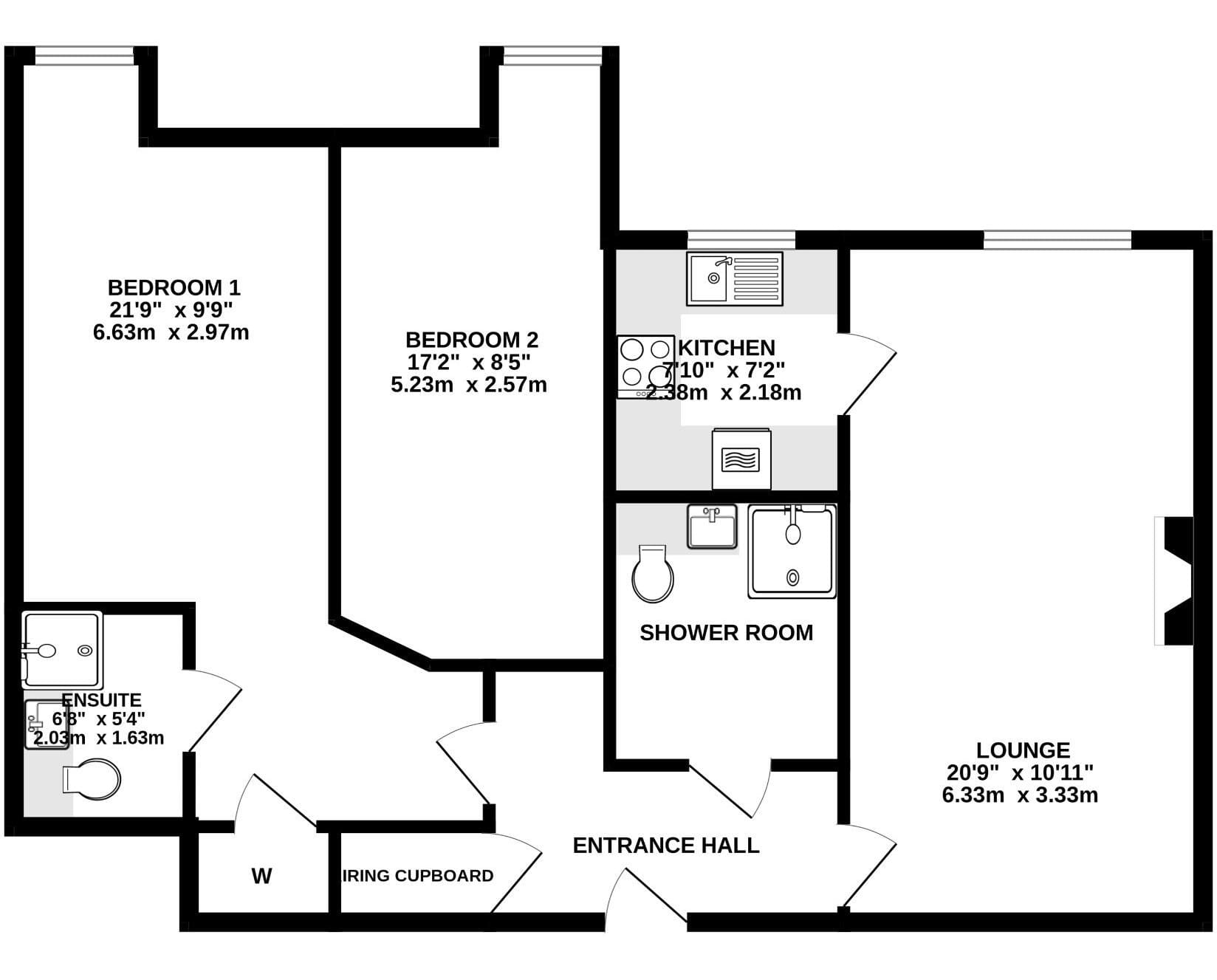
The interior of this beautifully presented, top floor property comprises a spacious living room, fitted kitchen, two good sized bedrooms, with an en-suite and a shower room. The property also benefits from a range of residents' facilities, including a communal lounge, communal gardens, lift access, guest suite and on site house manager.
Located in the sought after village of Dibden Purlieu, Southampton, the property is close to a range of amenities, including shops, supermarkets, restaurants, and pubs. Excellent transport links can be found from Beaulieu Road Train Station (4.8 miles), a variety of local bus routes, and quick access to the M27.
This exciting opportunity should not be missed! All enquiries can be made through Bettermove.
-----------------------------------------------------------------------------------
Reserve It Now
Secure your property with a £1,000 exclusivity deposit.
It’s taken off the market, locked in for you, and returned to you on completion.
No risk of being gazumped. No wasted costs.
Talk to our team today about Exclusivity Deposits
------------------------------------------------------------------------------------
Part Exchange Available
We can take your property in as part exchange, giving you a guaranteed buyer and a quicker, chain-free move.
Ask our team today about how our Part Exchange option can help you move with confidence.
Part Exchange subject to terms, valuation, and eligibility.
Please Note: These particulars, whilst believed to be accurate are set out as a general outline only for guidance and do not constitute any part of an offer or contract. Intending purchasers should not rely on them as statements of representations of fact, but must satisfy themselves by inspection or otherwise as to their accuracy. No person in this firm’s employment has the authority to make or give any representation or warranty in respect of the property.
Enquire about this property
"*" indicates required fields



























