Price
£690000
Availability
For Sale
property type
House
Bedrooms
3
Bathrooms
2
reception rooms
1
Tenure
Freehold
Property Features
- 3 Bedrooms
- Converted Barn
- 2 Acres
- Planning Potential
- Underfloor Heating, Solar Panels & Air Source Heat Pump
Property Summary
A SPACIOUS THREE BEDROOM BARN CONVERSION in Christchurch, ideal for an array of buyers. Call to enquire!
Bettermove are proud to present this 3 bedroom barn conversion in Christchurch.
The property benefits from double glazing, solar panels, underfloor electric heating, and two air source heat systems, with ample off street parking available.
The council tax band is G.
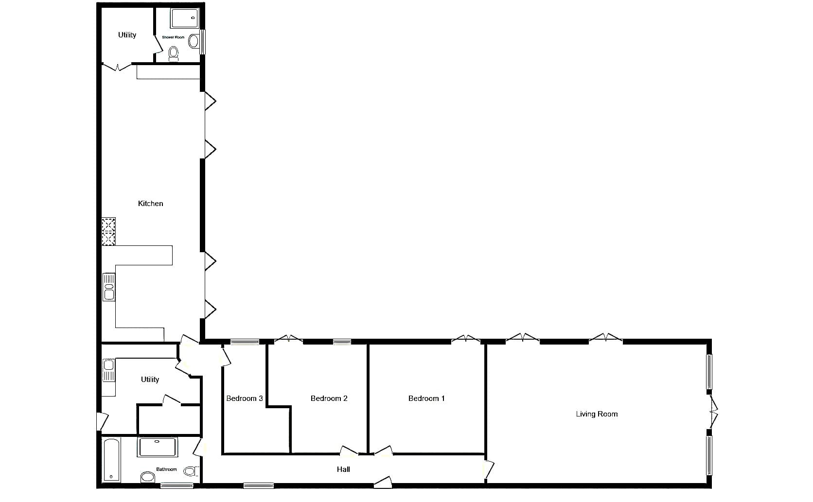
The interior of this beautifully presented property blends character with modern efficiency and comprises a spacious lounge, open-plan kitchen/diner/sitting area with an integrated kitchen, and a practical utility room, with bi-fold doors from the kitchen open onto a south-facing rear courtyard garden, complete with foundations already in place for a central pergola. The accommodation offers three well-proportioned bedrooms, and two family bathrooms. The exterior boasts a generous private garden, with approximately 2 acres of land, within a large courtyard setting, and surrounded by farmland and fields, offering excellent space for the summer months. The property benefits from extensive planning permissions, including a triple garage (with foundations in place), conversion of the attached barn into up to six en-suite bedrooms, potential for an indoor pool and gym within the arched barn, an additional reception room, and scope to create up to approximately 10,000 sq ft of predominantly ground-floor accommodation.
Located in the sought after village of Christchurch, Wisbech, the property is close to a range of amenities, including shops, supermarkets, restaurants and pubs. Excellent transport connections can be found from Manea Train Station, a variety of local bus routes, and quick access to the A10, and A47.
This exciting opportunity should not be missed. All enquiries can be made through Bettermove.
-----------------------------------------------------------------------------------
Reserve It Now
Secure your property with a £1,000 exclusivity deposit.
It’s taken off the market, locked in for you, and returned to you on completion.
No risk of being gazumped. No wasted costs.
Talk to our team today about Exclusivity Deposits
------------------------------------------------------------------------------------
Part Exchange Available
We can take your property in as part exchange, giving you a guaranteed buyer and a quicker, chain-free move.
Ask our team today about how our Part Exchange option can help you move with confidence.
Part Exchange subject to terms, valuation, and eligibility.
Please Note: These particulars, whilst believed to be accurate are set out as a general outline only for guidance and do not constitute any part of an offer or contract. Intending purchasers should not rely on them as statements of representations of fact, but must satisfy themselves by inspection or otherwise as to their accuracy. No person in this firm’s employment has the authority to make or give any representation or warranty in respect of the property.
Enquire about this property
"*" indicates required fields

































