Price
£163000
Availability
For Sale
property type
Semi-Detached House
Bedrooms
2
Bathrooms
1
reception rooms
2
Tenure
Freehold
Property Features
- Vacant for Immediate Possession
- No Forward Chain
- 2 Bedrooms
- Semi-detached
Property Summary
A SPACIOUS TWO BEDROOM SEMI-DETACHED in Much Hoole, available VACANT for IMMEDIATE possession and CHAIN FREE. Call to enquire!
Bettermove are proud to present this 2 bedroom semi-detached house in Much Hoole, available with no forward chain.
This property benefits from double glazing, and gas central heating throughout, with off road parking available via a shared driveway.
The council tax band is C.
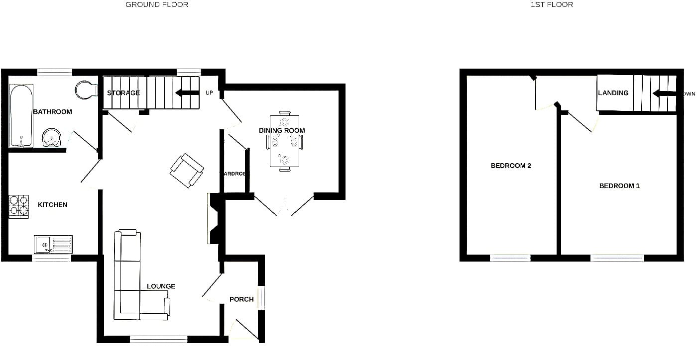
The interior of this beautifully presented property comprises a spacious living room, dining room, fitted kitchen and family bathroom on the ground floor. Upstairs, you'll find two good sized double bedrooms. The exterior boasts a rear private courtyard, perfect for enjoying the summer months.
Located in the quiet village of Much Hoole, Preston, the property is close to a range of amenities, including shops, supermarkets, restaurants, pubs, and schools. Excellent transport links can be found from Croston Train Station (3.6 miles), a variety of local bus routes, and quick access to the M6.
This exciting opportunity should not be missed! All enquiries can be made through Bettermove.
-------------------------------------------------------------------------------------
Reserve It Now
Secure your property with a £1,000 exclusivity deposit.
It’s taken off the market, locked in for you, and returned to you on completion.
No risk of being gazumped. No wasted costs.
Talk to our team today about Exclusivity Deposits
-------------------------------------------------------------------------------------
Part Exchange Available
We can take your property in as part exchange, giving you a guaranteed buyer and a quicker, chain-free move.
Ask our team today about how our Part Exchange option can help you move with confidence.
Part Exchange subject to terms, valuation, and eligibility.
Please Note: These particulars, whilst believed to be accurate are set out as a general outline only for guidance and do not constitute any part of an offer or contract. Intending purchasers should not rely on them as statements of representations of fact, but must satisfy themselves by inspection or otherwise as to their accuracy. No person in this firm’s employment has the authority to make or give any representation or warranty in respect of the property.
Enquire about this property
"*" indicates required fields





















