For Sale
Price

£228000

Availability

For Sale

property type

Semi-Detached House

Bedrooms

2

Bathrooms

1

reception rooms

1

Tenure

Freehold

  • Make Enquiry
  • Floorplan
  • View Brochure
  • View EPC
  • View EPC

Property Features

  • Vacant for Immediate Possession
  • Grade II Listed
  • Semi Detached
  • 2 Bedrooms

Property Summary

A SPACIOUS TWO BEDROOM GRADE II LISTED SEMI-DETACHED HOUSE in Bridport, available VACANT for IMMEDIATE possession and CHAIN FREE. Call to enquire!


Bettermove are proud to present this 2 bedroom Grade II Listed, semi-detached house in Bridport, available with no forward chain.


This property benefits from gas central heating throughout and single glazing, with on street parking available.


The council tax band is B.


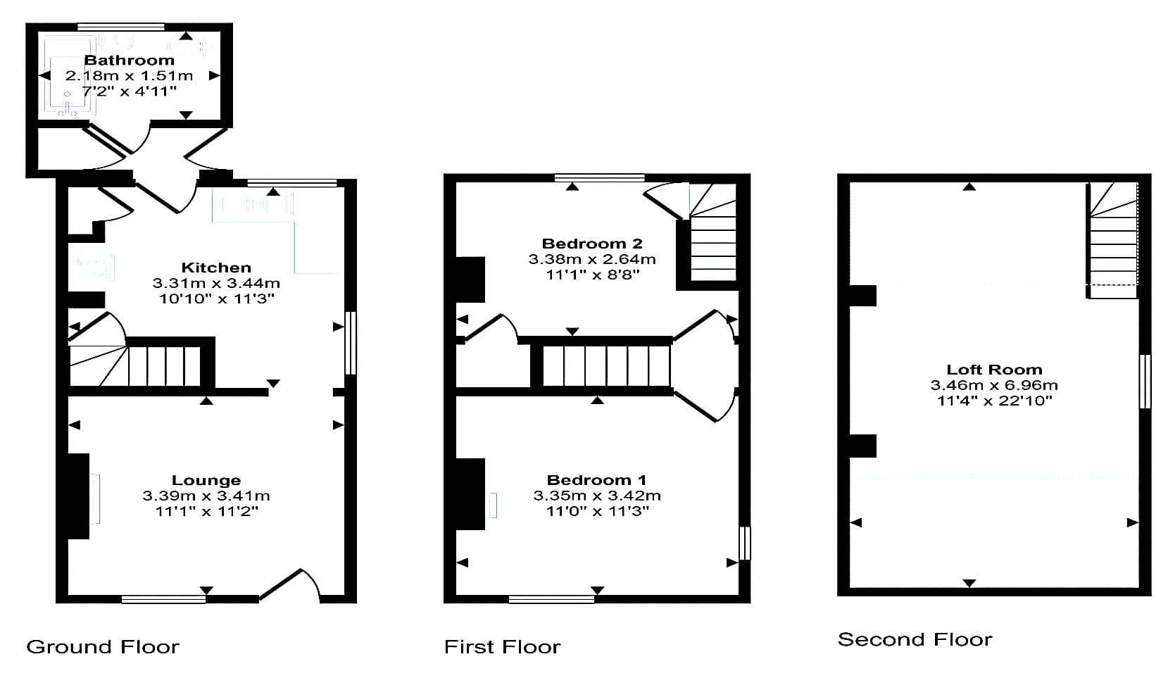
This charming  home offers a spacious and well-designed interior, perfect for comfortable family living. On the ground floor, you'll find a generous lounge ideal for relaxing or entertaining, a well-appointed fitted kitchen, and a modern family bathroom. Upstairs features two generously sized bedrooms, while a large loft room provides a potential third bedroom. Outside, the property benefits from a private rear courtyard, a lovely, low-maintenance space perfect for outdoor dining or unwinding during the warmer months.


Located in the popular town of Bridport, the property is close to a range of amenities, including shops, supermarkets, restaurants, pubs, schools and a short distance to the seafront. Excellent transport links can be found from Maiden Newton Railway Station, local bus routes, and quick access to the A35.


This exciting opportunity should not be missed! All enquires can be made through Bettermove.


-------------------------------------------------------------------------------------


Reserve It Now


Secure your property with a £1,000 exclusivity deposit.


It’s taken off the market, locked in for you, and returned to you on completion.


No risk of being gazumped. No wasted costs.


Talk to our team today about Exclusivity Deposits


-------------------------------------------------------------------------------------


Part Exchange Available


We can take your property in as part exchange, giving you a guaranteed buyer and a quicker, chain-free move.


Ask our team today about how our Part Exchange option can help you move with confidence.


Part Exchange subject to terms, valuation, and eligibility.

< Back to all properties

Please Note: These particulars, whilst believed to be accurate are set out as a general outline only for guidance and do not constitute any part of an offer or contract. Intending purchasers should not rely on them as statements of representations of fact, but must satisfy themselves by inspection or otherwise as to their accuracy. No person in this firm’s employment has the authority to make or give any representation or warranty in respect of the property.

Enquire about this property

0330 0040050

"*" indicates required fields

This field is for validation purposes and should be left unchanged.
This field is hidden when viewing the form
This field is hidden when viewing the form