Price
£375000
Availability
For Sale
property type
Semi-Detached House
Bedrooms
4
Bathrooms
4
reception rooms
2
Tenure
Freehold
Property Features
- 4 Bedroom Detached House
- Split into 2 Flats
- 4 Bedrooms
- New Roof Installed
- Tenanted for Immediate Investment
Property Summary
A FOUR BEDROOM SEMI-DETACHED, SPLIT INTO TWO SEPARATE FLATS in Bognor Regis, available TENANTED for IMMEDIATE investment and CHAIN FREE. Call to enquire!
Bettermove are proud to present this 4 bedroom semi-detached house, split into two separate flats, in Bognor Regis, available with no forward chain.
This is currently a partially tenanted property and will be sold with tenants in situ for immediate investment. Rental yields can be obtained through Bettermove.
Each flat has its own EPC rating, both benefit from double glazing, and gas central heating, the rear section of the roof has recently been replaced. There is also a driveway and garage available.
Each flat is a council tax band B.
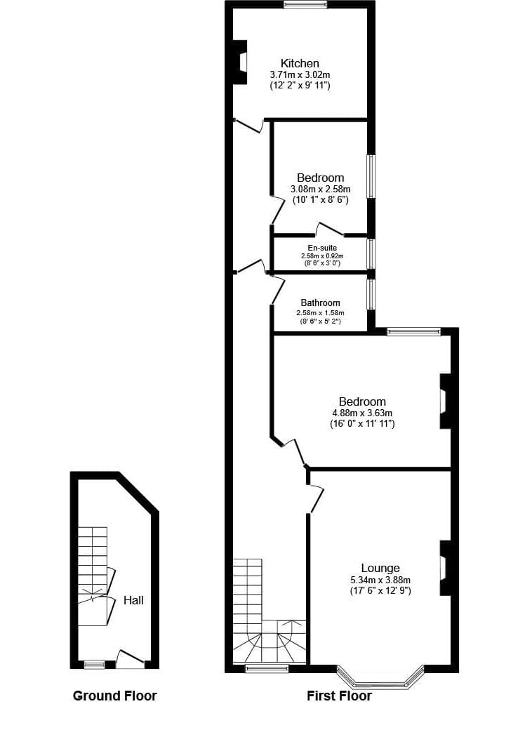
The ground floor flat comprises a spacious living room, fitted kitchen, two bedrooms and a family bathroom, and en-suite.
The first floor flat, which is currently vacant, consists of a spacious living room, fitted kitchen, two bedrooms, with an en-suite and a family bathroom.
The property also boasts a separate garage, which is also rented out, and a private garden, currently used by the ground floor flat, with patio and lawn areas.
Located in the popular town of Bognor Regis, the property is close to a range of amenities, including shops, supermarkets, restaurants, pubs, and schools. Excellent transport links can be found from Bognor Regis Train Station (1.0 mile), a variety of local bus routes, and quick access to the A259, leading to the A27.
This exciting investment opportunity should not be missed! All enquiries can be made through Bettermove.
-----------------------------------------------------------------------------------
Reserve It Now
Secure your property with a £1,000 exclusivity deposit.
It’s taken off the market, locked in for you, and returned to you on completion.
No risk of being gazumped. No wasted costs.
Talk to our team today about Exclusivity Deposits
------------------------------------------------------------------------------------
Part Exchange Available
We can take your property in as part exchange, giving you a guaranteed buyer and a quicker, chain-free move.
Ask our team today about how our Part Exchange option can help you move with confidence.
Part Exchange subject to terms, valuation, and eligibility.
Please Note: These particulars, whilst believed to be accurate are set out as a general outline only for guidance and do not constitute any part of an offer or contract. Intending purchasers should not rely on them as statements of representations of fact, but must satisfy themselves by inspection or otherwise as to their accuracy. No person in this firm’s employment has the authority to make or give any representation or warranty in respect of the property.
Enquire about this property
"*" indicates required fields





























