Price
£285000
Availability
Sold STC
property type
Detached House
Bedrooms
4
Bathrooms
0
reception rooms
0
Tenure
Leasehold
Property Features
- Cash Buyers Only
- Leasehold
- Detached House
- 4 Bedrooms
- Three Bathrooms & Downstairs WC
- Driveway & Garage
Property Summary
A SPACIOUS FOUR BEDROOM DETACHED HOUSE in Blackpool, welcoming CASH BUYERS ONLY. Call to enquire!
Bettermove are proud to present this 4 bedroom detached house in Blackpool, cash buyers only.
This property benefits from high performance glazing, and gas central heating throughout, with off road parking available, via a driveway and garage.
The council tax band is D.
This is a leasehold property of 999 years, starting in 2016; the ground rent is £350.00 per annum.
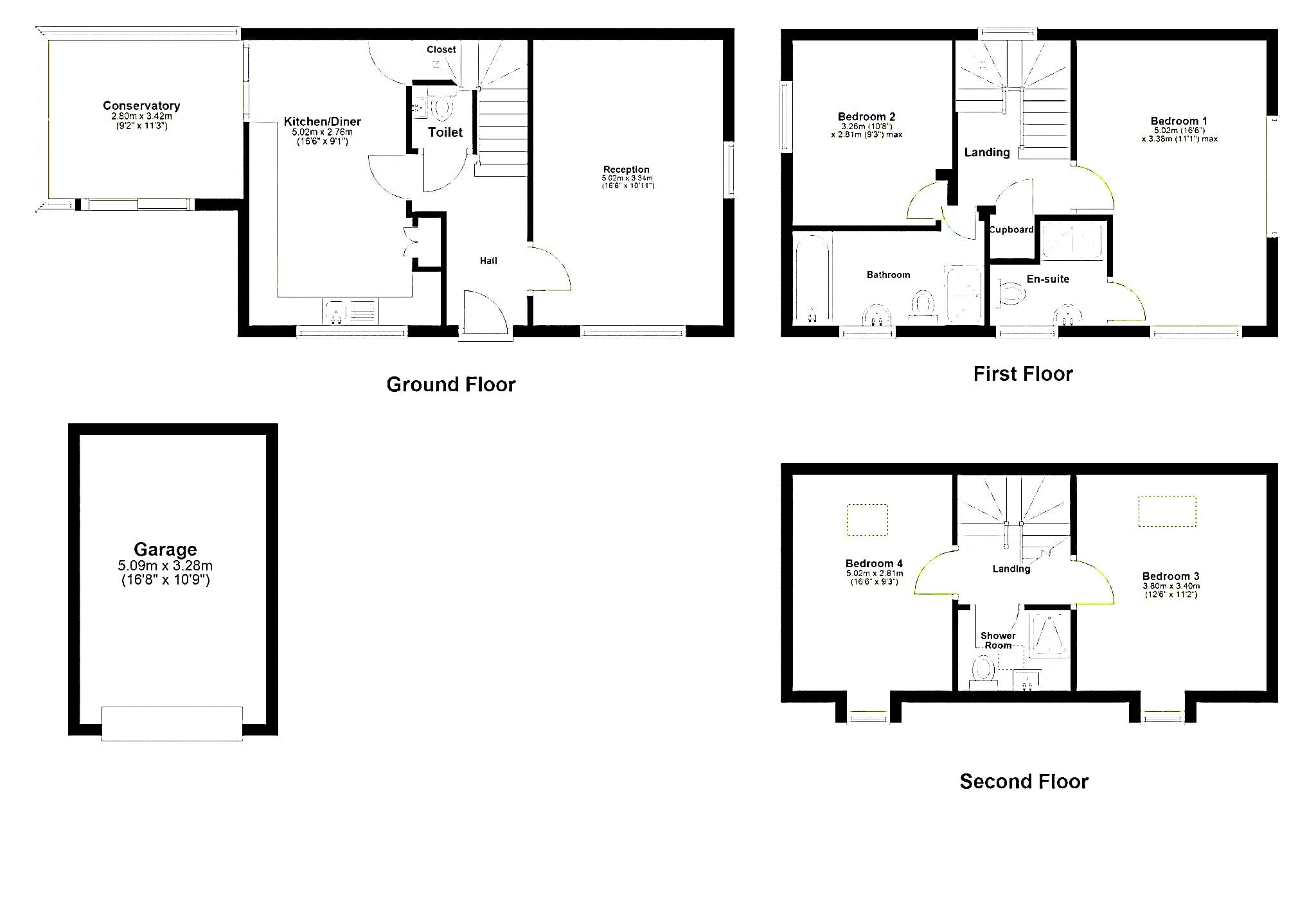
This beautifully presented property offers generous and versatile living space arranged over three floors. The ground floor features a bright and spacious reception room, contemporary fitted kitchen/dining area, conservatory, and a convenient downstairs WC. On the first floor, you’ll find two well-proportioned double bedrooms, including one with an en-suite shower room, as well as a modern family bathroom. The top floor comprises two additional bedrooms and a stylish shower room. Externally, the property benefits from a detached garage to the front and a private, low-maintenance rear garden—perfect for relaxing or entertaining during the warmer months.
Located in the popular coastal town of Blackpool, the property is close to a range of amenities, including shops, supermarkets, restaurants, pubs, and schools. Excellent transport links can be found from Squires Gate Train Station (2.8 miles) local tram and bus routes, and quick access to Blackpool Airport, and the M55.
This exciting opportunity should not be missed! All enquires can be made through Bettermove.
-------------------------------------------------------------------------------------
Reserve It Now
Secure your property with a £1,000 exclusivity deposit.
It’s taken off the market, locked in for you, and returned to you on completion.
No risk of being gazumped. No wasted costs.
Talk to our team today about Exclusivity Deposits
-------------------------------------------------------------------------------------
Part Exchange Available
We can take your property in as part exchange, giving you a guaranteed buyer and a quicker, chain-free move.
Ask our team today about how our Part Exchange option can help you move with confidence.
Part Exchange subject to terms, valuation, and eligibility.
Please Note: These particulars, whilst believed to be accurate are set out as a general outline only for guidance and do not constitute any part of an offer or contract. Intending purchasers should not rely on them as statements of representations of fact, but must satisfy themselves by inspection or otherwise as to their accuracy. No person in this firm’s employment has the authority to make or give any representation or warranty in respect of the property.
Enquire about this property
"*" indicates required fields































