Price
£210000
Availability
Sold STC
property type
Semi-Detached House
Bedrooms
2
Bathrooms
3
reception rooms
2
Tenure
Freehold
Property Features
- Semi-Detached
- 2 Bedrooms
- Driveway
- Shower Room, En-suite & Downstairs WC
Property Summary
A SPACIOUS TWO BED SEMI-DETACHED in Sandiacre, ideal for an array of buyers. Call to enquire!
Bettermove are proud to present this 2 bedroom semi-detached house in Sandiacre.
This property benefits from double glazing and gas central heating throughout, with off road parking available via the driveway.
The council tax band is B.
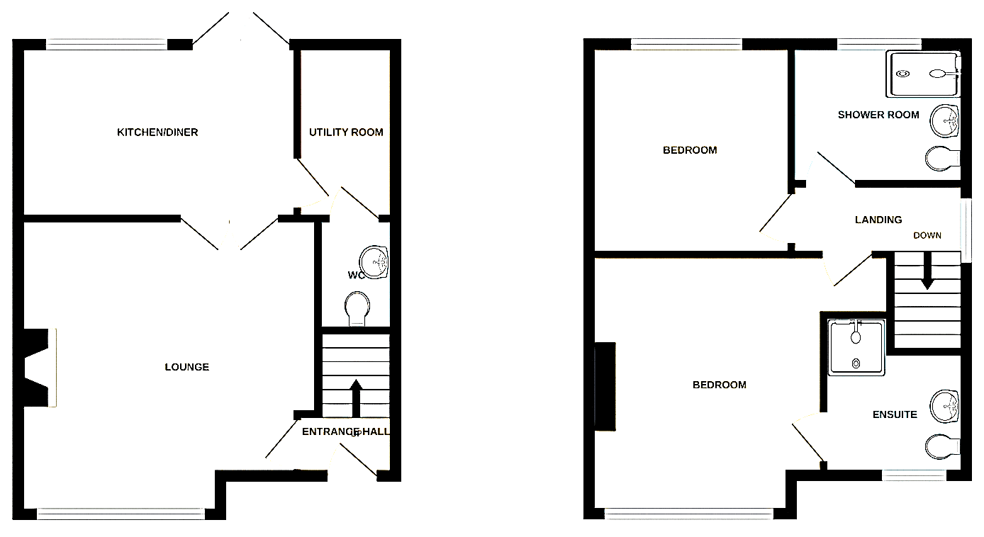
This beautifully presented home offers spacious and well-appointed living throughout. On the ground floor, you’ll find a generous living room, a modern fitted kitchen/diner, a convenient utility room, and a downstairs WC. Upstairs, the first floor features two well-proportioned double bedrooms, including a master with its own private en-suite. A contemporary shower room completes the upper level. Outside, the property benefits from a private rear garden with a combination of lawn and patio areas, perfect for relaxing or entertaining during the warmer months. The garden also includes two substantial timber workshops, offering excellent storage or potential for hobby space.
Located in the popular town of Sandiacre, Nottingham, the property is close to a range of amenities, including shops, supermarkets, restaurants, pubs and schools. Excellent transport links can be found from Long Eaton Railway Station, local bus and tram routes, and quick access to the M1.
This exciting opportunity should not be missed! All enquiries can be made through Bettermove.
-------------------------------------------------------------------------------------
Reserve It Now
Secure your property with a £1,000 exclusivity deposit.
It’s taken off the market, locked in for you, and returned to you on completion.
No risk of being gazumped. No wasted costs.
Talk to our team today about Exclusivity Deposits
-------------------------------------------------------------------------------------
Part Exchange Available
We can take your property in as part exchange, giving you a guaranteed buyer and a quicker, chain-free move.
Ask our team today about how our Part Exchange option can help you move with confidence.
Part Exchange subject to terms, valuation, and eligibility.
Please Note: These particulars, whilst believed to be accurate are set out as a general outline only for guidance and do not constitute any part of an offer or contract. Intending purchasers should not rely on them as statements of representations of fact, but must satisfy themselves by inspection or otherwise as to their accuracy. No person in this firm’s employment has the authority to make or give any representation or warranty in respect of the property.
Enquire about this property
"*" indicates required fields









































