This property is not currently available. It may be sold or temporarily removed from the market.
For Sale
Price

£91000

Availability

For Sale

property type

Terraced House

Bedrooms

2

Bathrooms

1

reception rooms

1

Tenure

Freehold

  • Make Enquiry
  • Floorplan
  • View Brochure
  • View EPC
  • View EPC

Property Features

  • Vacant for Immediate Possession
  • No Forward Chain
  • Some Upgrades Required
  • Terraced House
  • 2 Bedrooms

Property Summary

A SPACIOUS TWO BED TERRACE HOUSE in Hull, available VACANT for IMMEDIATE possession and CHAIN FREE. Call to enquire!


Bettermove are proud to present this 2 bedroom terraced house in Hull, available with no forward chain.


This property benefits from double glazing, and gas central heating throughout, with on street parking available.


The council tax band is A.


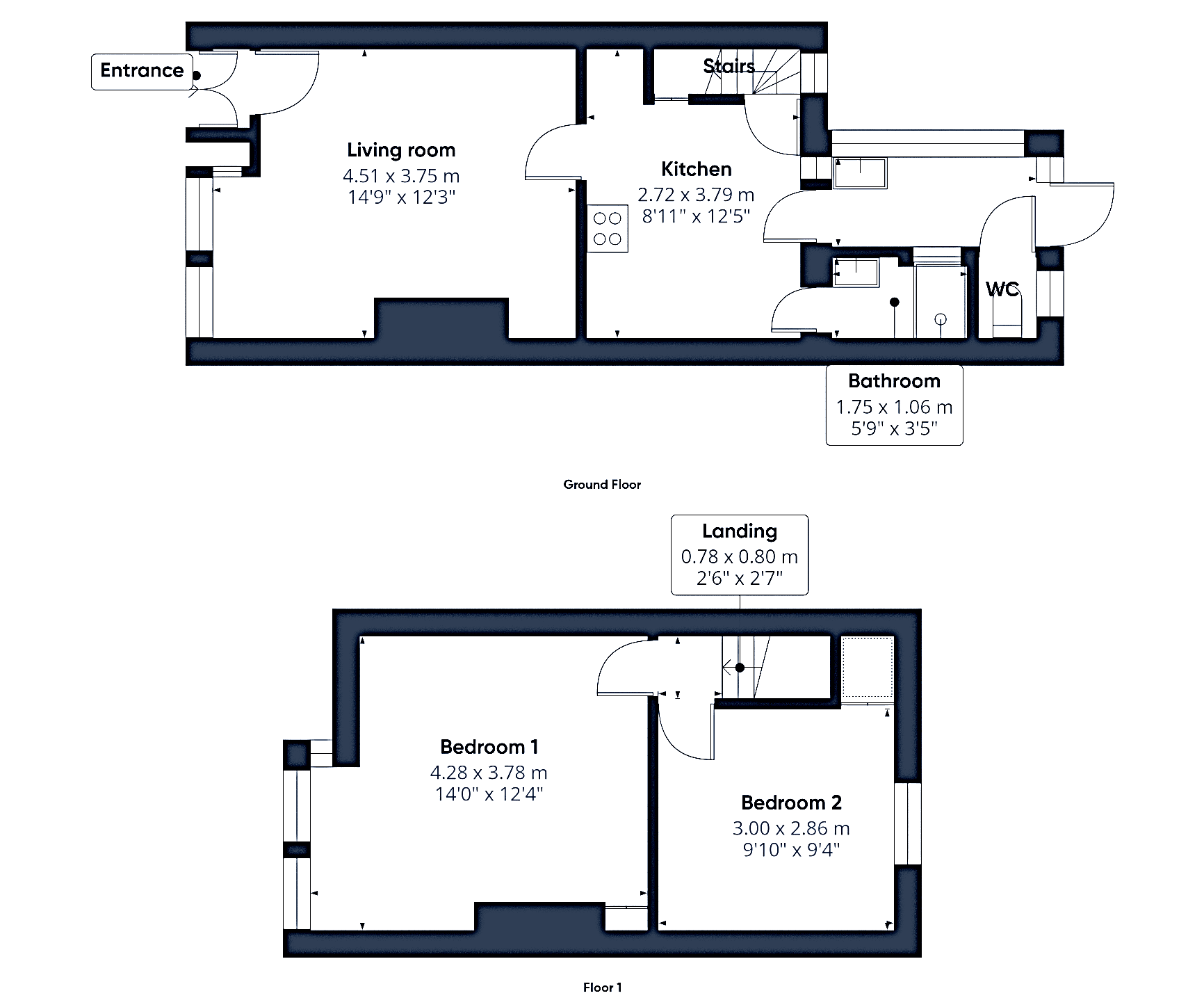
This well-presented property offers a fantastic opportunity for personalisation, with some scope for modern upgrades. The ground floor features a generously sized living room, a fitted kitchen, a convenient shower room, and a separate WC. Upstairs, you’ll find two spacious double bedrooms. Outside, the private rear garden offers plenty of potential and is the perfect space to relax or entertain during the warmer months.


Located in the popular city of Hull, the property is close to a range of amenities, including shops, supermarkets, restaurants, pubs and schools. Excellent transport links can be found from Hull Railway Station, a variety of local bus routes, and quick access to the A63, leading to the M62.


This exciting opportunity should not be missed! All enquiries can be made through Bettermove.


-------------------------------------------------------------------------------------


Reserve It Now


Secure your property with a £1,000 exclusivity deposit.


It’s taken off the market, locked in for you, and returned to you on completion.


No risk of being gazumped. No wasted costs.


Talk to our team today about Exclusivity Deposits


-------------------------------------------------------------------------------------


Part Exchange Available


We can take your property in as part exchange, giving you a guaranteed buyer and a quicker, chain-free move.


Ask our team today about how our Part Exchange option can help you move with confidence.


Part Exchange subject to terms, valuation, and eligibility.

< Back to all properties

Please Note: These particulars, whilst believed to be accurate are set out as a general outline only for guidance and do not constitute any part of an offer or contract. Intending purchasers should not rely on them as statements of representations of fact, but must satisfy themselves by inspection or otherwise as to their accuracy. No person in this firm’s employment has the authority to make or give any representation or warranty in respect of the property.

Enquire about this property

0330 0040050

"*" indicates required fields

This field is for validation purposes and should be left unchanged.
This field is hidden when viewing the form
This field is hidden when viewing the form