Price
£189000
Availability
For Sale
property type
Semi-Detached House
Bedrooms
3
Bathrooms
1
reception rooms
1
Tenure
Freehold
Property Features
- 3 Bedrooms
- Semi-Detached
- No Forward Chain
- Tenanted or Vacant on Possession
Property Summary
A SPACIOUS THREE BEDROOM SEMI-DETACHED HOUSE in Cleethorpes, available TENANTED for IMMEDIATE investment or VACANT on POSSESSION and CHAIN FREE. Call to enquire!
Bettermove are proud to present this 3 bedroom semi-detached house in Cleethorpes, available with no forward chain.
This is currently a tenanted property and can be sold with tenants in situ for immediate investment, or vacant on possession. Rental yields can be obtained through Bettermove.
The property benefits from double glazing, newly replaced windows, and gas central heating throughout, with off road parking available via the driveway.
The council tax band is B.
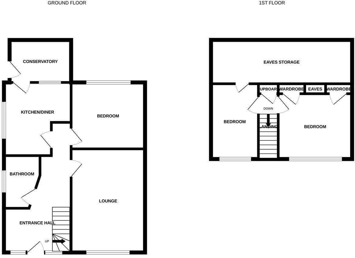
The interior of this beautifully presented property comprises a spacious living room, newly fitted kitchen/diner, conservatory, one double bedroom, and a modern bathroom on the ground floor. The first floor consists of two double bedrooms and ample storage spaces. The exterior boasts a front garden with gravel and lawn areas, and a private rear garden, with patio, gravel and lawn areas, perfect for enjoying the summer months.
Located in the popular coastal town of Cleethorpes, the property is close to a range of amenities, including shops, supermarkets, restaurants, pubs, and a short distance to the seafront. Excellent transport links can be found from Cleethorpes Train Station (2.3 miles), a variety of local bus routes, and quick access to the A16.
This exciting investment opportunity should not be missed! All enquiries can be made through Bettermove.
-----------------------------------------------------------------------------------
Reserve It Now
Secure your property with a £1,000 exclusivity deposit.
It’s taken off the market, locked in for you, and returned to you on completion.
No risk of being gazumped. No wasted costs.
Talk to our team today about Exclusivity Deposits
------------------------------------------------------------------------------------
Part Exchange Available
We can take your property in as part exchange, giving you a guaranteed buyer and a quicker, chain-free move.
Ask our team today about how our Part Exchange option can help you move with confidence.
Part Exchange subject to terms, valuation, and eligibility.
Please Note: These particulars, whilst believed to be accurate are set out as a general outline only for guidance and do not constitute any part of an offer or contract. Intending purchasers should not rely on them as statements of representations of fact, but must satisfy themselves by inspection or otherwise as to their accuracy. No person in this firm’s employment has the authority to make or give any representation or warranty in respect of the property.
Enquire about this property
"*" indicates required fields







































