Price
£440000
Availability
Sold STC
property type
Semi-Detached House
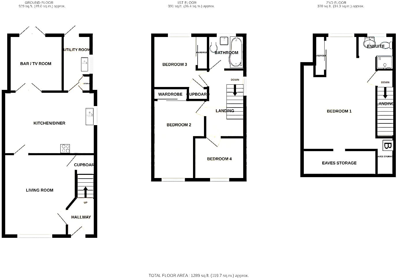
Bedrooms
4
Bathrooms
2
reception rooms
3
Tenure
Freehold
Property Features
- No Forward Chain
- 4 Bedrooms
- Family Bathroom & En Suite
- Two Reception Rooms
- Modern Interior Throughout
- Driveway & Garage
Property Summary
A SPACIOUS FOUR BEDROOM SEMI-DETACHED in Billericay, available VACANT for IMMEDIATE possession and CHAIN FREE. Call to enquire!
Bettermove are proud to present this 4 bedroom semi-detached house in Billericay, available with no forward chain.
This property benefits from double glazing and gas central heating throughout, with off road parking available via the driveway and garage.
The council tax band is D.
This beautifully presented home, offers generous and versatile living throughout. The ground floor features a spacious living room, a modern fitted kitchen/diner with an adjoining utility room, and a stylish second reception room currently set up as a bar and TV lounge, ideal for entertaining. Upstairs, you'll find three well-proportioned bedrooms and a contemporary family bathroom. The impressive master suite occupies the converted loft, complete with its own en-suite shower room. Outside, the property enjoys a private rear garden with a combination of low-maintenance artificial lawn and a paved patio area, perfect for relaxing or entertaining during the summer months.
Located in the popular town of Billericay, the property is close to a range of amenities, including shops, supermarkets, restaurants, pubs and schools. Excellent transport links can be found from Billericay Railway Station, a variety of local bus routes, and quick access to the A12, leading to the M25.
This exciting opportunity should not be missed! All enquiries can be made through Bettermove.
-------------------------------------------------------------------------------------
Reserve It Now
Secure your property with a £1,000 exclusivity deposit.
It’s taken off the market, locked in for you, and returned to you on completion.
No risk of being gazumped. No wasted costs.
Talk to our team today about Exclusivity Deposits
-------------------------------------------------------------------------------------
Part Exchange Available
We can take your property in as part exchange, giving you a guaranteed buyer and a quicker, chain-free move.
Ask our team today about how our Part Exchange option can help you move with confidence.
Part Exchange subject to terms, valuation, and eligibility.
Please Note: These particulars, whilst believed to be accurate are set out as a general outline only for guidance and do not constitute any part of an offer or contract. Intending purchasers should not rely on them as statements of representations of fact, but must satisfy themselves by inspection or otherwise as to their accuracy. No person in this firm’s employment has the authority to make or give any representation or warranty in respect of the property.
Enquire about this property
"*" indicates required fields









































